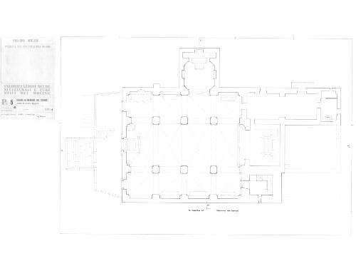
Chiesa di Santa Maria Maggiore (chiesa, parrocchiale)
Type:
chiesa; image
Category:
Architectural Heritage
Language:
it
Subject:
Chiesa di Santa Maria Maggiore
Format:
strutture verticali: parete (in muratura a corsi irregolari, pietra locale), intero bene; strutture di orizzontamento: volta; volta; soffitto (a crociera; a botte; piano a sesto ribassato; a cassettone con unghie), parte del bene; parte del bene; navata laterale; coperture: a tetto (a falde a pianta rettangolare), intero bene; scale: scala (d'accesso (esterno) rettilinea, in muratura, pietra), esterna; elementi decorativi: altare maggiore (marmo), navata, interna; isrizioni, lapidi, stemmi: iscrizione (incisa/o, pietra), lapide all'interno della chiesa
Date:
carattere generale (XI primo quarto, 1022/00/00 post - XI primo quarto, 1022/00/00 ante); centro urbano (XV terzo quarto, 1456/00/00 post - XV terzo quarto, 1456/00/00 ante); nucleo centrale (XIX terzo quarto, 1870/00/00 post - XX primo quarto, 1914/00/00 ante); intero bene (XVIII primo quarto, 1720/00/00 post - XVIII secondo quarto, 1730/00/00 ante)
Coverage:
Molise (CB) - Morrone del Sannio
Spatial coverage:
Corso Giuseppe Romano - Morrone del Sannio (CB), Molise - Italia
Source:
Condizioni d'uso della risorsa digitale:
![]()
Quest'opera di SIGECweb è distribuita con Licenza Con attribuzione, condividere allo stesso modo, senza riuso commerciale.
Previews
Relations
Is managed by: MIC - Istituto centrale per il catalogo e la documentazione
Provider
Identifier: 14 00074487
Bibliographic citation: bibliografia di confronto: Masciotta Giambattista, 1988/00/00; bibliografia di confronto: AA.VV., 1996/12/00; bibliografia di confronto: AA.VV., 2007/00/00
Rights
Rights: proprietà Ente religioso cattolico
Metadata license: Con attribuzione, condividere allo stesso modo, riuso commerciale